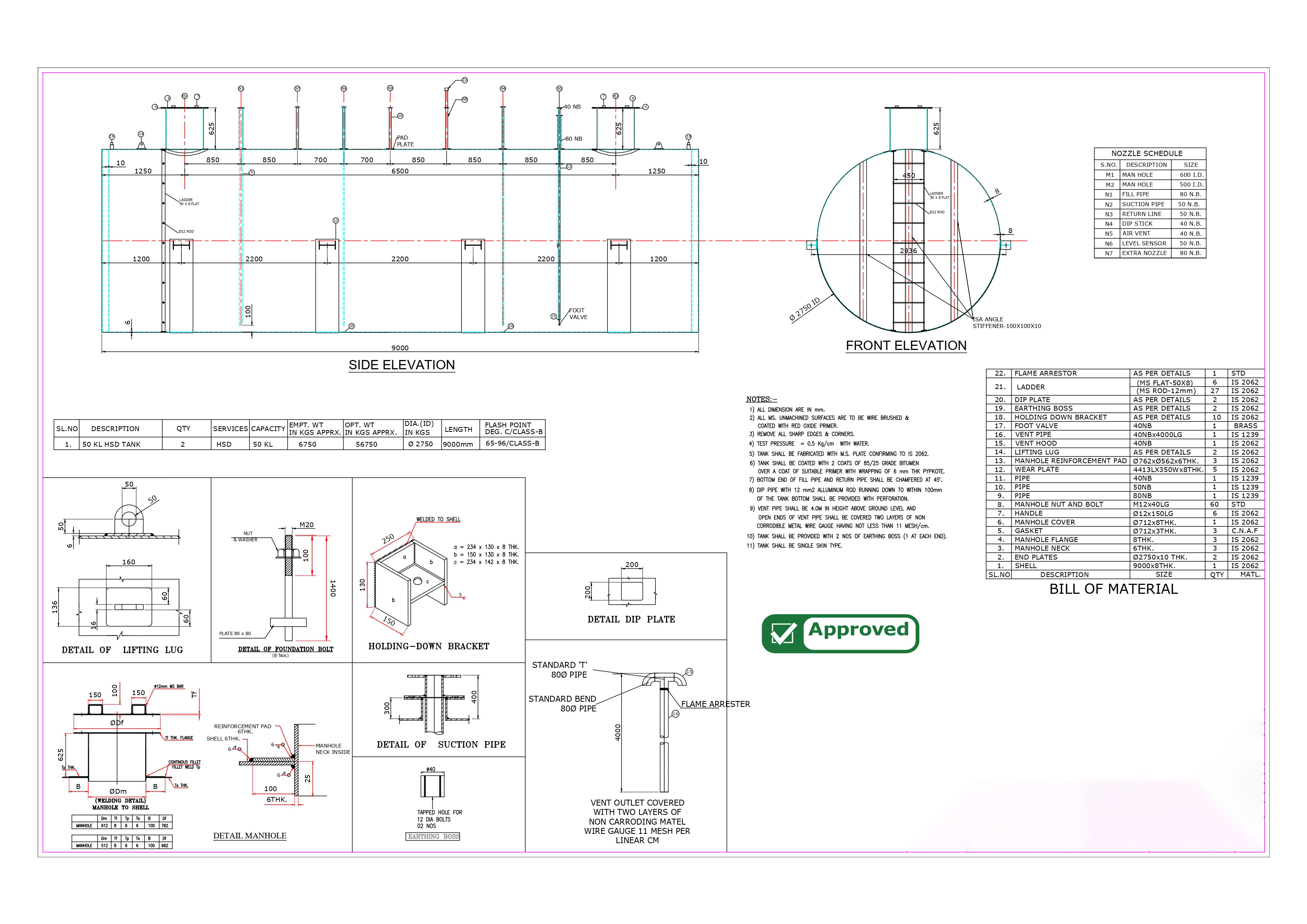
HSD Storage Tank Enquiry


Drawing Specification Details


EFFLUENT TREATMENT PLANT MANUFACTURERS IN TAMILNADU

Nov 06, 2023

Effluent Treatment Plant Tamilnadu

Effluent Treatment Plants (ETPs) play a crucial role in maintaining environmental sustainability by treating wastewater generated from various industrial processes. They are instrumental in safeguarding natural ecosystems, public health, and the overall well-being of the community. This essay aims to provide an in-depth understanding of ETPs, their significance, functioning, and their pivotal role in mitigating the environmental impact of industrial activities.

Significance of Effluent Treatment Plants

ETPs are indispensable in modern industrial processes due to their ability to treat and remove harmful pollutants from wastewater before its discharge into the environment. They contribute significantly to achieving compliance with environmental regulations and standards set by regulatory authorities. Moreover, ETPs play a crucial role in conserving natural resources by facilitating the reuse of treated water, thus reducing the demand for freshwater sources.

Components and Processes of an Effluent Treatment Plant

Primary Treatment:

The first stage of an ETP involves the removal of large, solid particles through processes like screening and sedimentation. This step prevents the entry of non-biodegradable materials into subsequent treatment stages.

Secondary Treatment:

In this phase, biological processes are employed to break down organic pollutants through the action of microorganisms. Aerobic and anaerobic treatments are common methods used to facilitate the decomposition of organic matter.

Tertiary Treatment:

This stage focuses on further purifying the effluent by removing remaining suspended solids, nutrients, and other contaminants. Advanced techniques like filtration, disinfection, and chemical treatment are employed to achieve the desired effluent quality.

Types of Effluent Treatment Plants

Physicochemical ETPs:

These plants use chemical reactions and physical processes to remove pollutants. They are effective in treating effluents with high concentrations of inorganic compounds and heavy metals.

Biological ETPs:

Biological ETPs rely on the action of microorganisms to break down organic pollutants. They are highly efficient in treating organic-rich wastewater and are considered more sustainable and eco-friendly compared to physicochemical methods.

Environmental Benefits of Effluent Treatment Plants

Protection of Water Bodies:

ETPs ensure that only treated and safe water is released back into natural water bodies, preventing contamination and safeguarding aquatic life.

Air Quality Improvement:

By reducing the emission of noxious gases and odors associated with untreated wastewater, ETPs contribute to maintaining a healthier atmosphere in surrounding areas.

Soil Conservation:

Properly treated effluents can be used for irrigation, reducing the need for freshwater and mitigating soil degradation caused by the discharge of harmful chemicals. Challenges and Future Perspectives

Challenges:

ETPs face challenges related to technology, resource availability, and regulatory compliance. In some cases, retrofitting older plants to meet stricter environmental standards can be expensive and resource-intensive.

Future Perspectives:

Ongoing research and development efforts aim to improve ETP technology, making them more efficient, cost-effective, and adaptable to diverse industrial sectors. Additionally, the integration of artificial intelligence and automation is expected to revolutionize the operation and monitoring of ETPs.

Effluent Treatment Plants play a pivotal role in safeguarding our environment by treating industrial wastewater. Their significance cannot be overstated, as they protect water bodies, conserve natural resources, and contribute to a cleaner and healthier ecosystem. It is imperative for industries to invest in and adhere to the highest standards of ETP operation, ensuring a sustainable and harmonious coexistence with our environment. By doing so, we pave the way for a brighter and more ecologically balanced future.

FAQ About Effluent treatment Plant

"There are some frequently asked questions relative to Effluent Treatment Plant".

Effluent Treatment Plant is a facility designed to treat and purify wastewater generated by industrial processes or domestic sources before it is discharged into the environment.

2Why Is An Effluent Treatment Plant Important?

Effluent Treatment Plants are crucial for protecting the environment by ensuring that harmful pollutants and contaminants are removed from wastewater before it is released into rivers, lakes, or sewage systems.

3How Does An Effluent Treatment Plant Work?

Effluent Treatment Plant typically uses physical, chemical, and biological processes to remove contaminants from wastewater. These processes include sedimentation, coagulation, biological degradation, and filtration.

4What Types Of Industries Use Effluent Treatment Plant?

Various industries, including textile, pharmaceutical, chemical, food and beverage, and manufacturing, rely on Effluent Treatment Plant to treat their wastewater and comply with environmental regulations.

5What Are The Components Of An Effluent Treatment Plant System?

An Effluent Treatment Plant system consists of several components, such as screens, grit chambers, primary clarifiers, aeration tanks, secondary clarifiers, sludge handling units, and disinfection units, depending on the complexity and size of the plant.

6What Are The Environmental Benefits Of Using An Effluent Treatment Plant?

Effluent Treatment Plant helps reduce water pollution, protect aquatic ecosystems, prevent the contamination of groundwater, and minimize the adverse impact on public health and the environment.

7Is Effluent Treatment Plant Mandatory For All Industries?

In many countries, Effluent Treatment Plant is required by law for certain industries to ensure compliance with environmental regulations. The necessity of an Effluent Treatment Plant depends on the type and scale of industrial activities.

8What Are The Challenges Associated With Operating An Effluent Treatment Plant?

Challenges can include high operational costs, maintenance requirements, ensuring consistent compliance with effluent standards, and managing the disposal of sludge generated during treatment.

9How Can I Determine The Size And Capacity Of An Effluent Treatment Plant For My Industry?

The size and capacity of an Effluent Treatment Plant depend on factors like the volume and characteristics of wastewater generated. It's advisable to consult with environmental engineers or experts to design an appropriate Effluent Treatment Plant for your specific needs.

10What Is The Difference Between Effluent Treatment Plant And STP (Sewage Treatment Plant)?

Effluent Treatment Plant primarily treats industrial wastewater, while STPs are designed for domestic sewage treatment. The treatment processes and effluent standards may vary accordingly.

11Are There Any Environmental Regulations Governing Effluent Treatment Plant?

Yes, most countries have environmental regulations and standards in place that dictate the permissible levels of contaminants in effluents discharged from Effluent Treatment Plant. Non-compliance can result in fines or legal penalties.

12Can Effluent Treatment Plant Be Customized For Specific Pollutant Removal?

Yes, Effluent Treatment Plant can be tailored to target specific pollutants based on the type of industry and the contaminants present in their wastewater.

13How Can I Maintain And Operate An Effluent Treatment Plant Efficiently?

Regular maintenance, proper monitoring of equipment, adherence to operational protocols, and employee training are essential for the efficient operation of an Effluent Treatment Plant.

14What Are The Costs Associated With Setting Up And Running An Effluent Treatment Plant?

The costs can vary widely depending on the size, complexity, and location of the Effluent Treatment Plant. Initial setup costs include construction, equipment purchase, and regulatory compliance expenses, while ongoing operational costs encompass energy, chemicals, and maintenance.

15Can An Effluent Treatment Plant Be Upgraded Or Expanded As My Industry Grows?

Yes, Effluent Treatment Plant can be upgraded or expanded to accommodate increased wastewater volumes or changing treatment requirements.

botão whatsapp

UPDATES